About this property
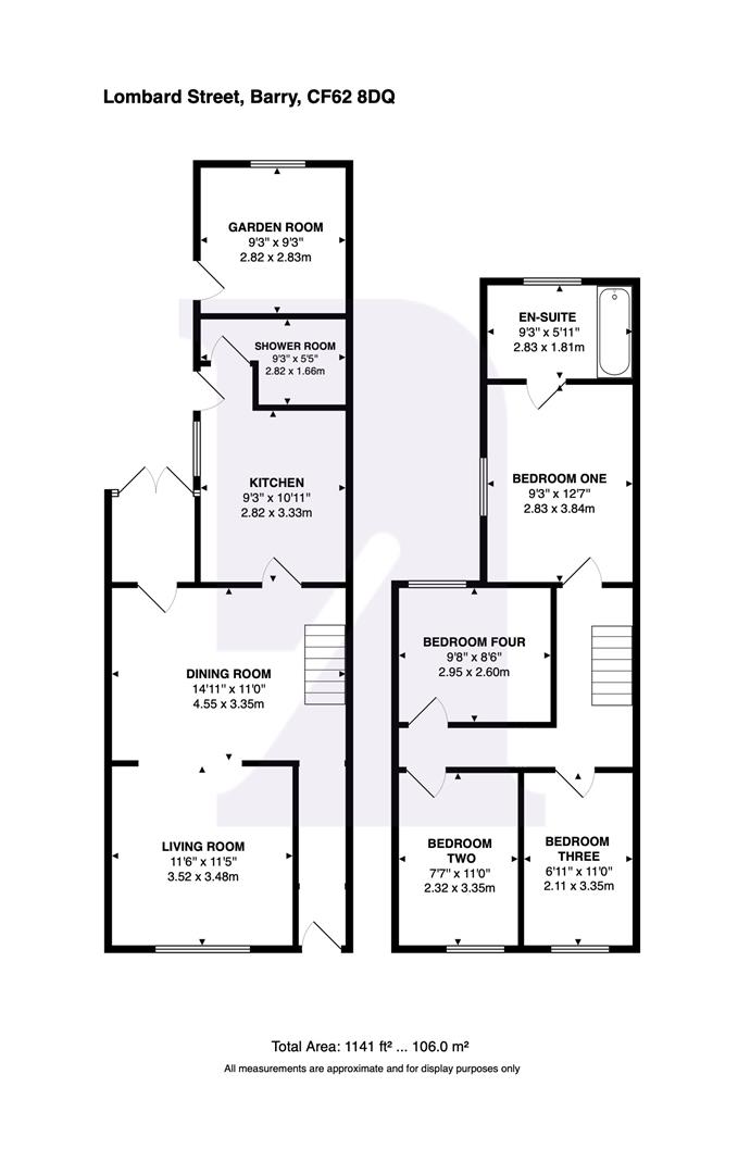
A rare opportunity to secure a spacious four-bedroom family home in the heart of Barry, offering outstanding value under £220,000. Thoughtfully presented throughout, this property features a sociable open-plan living/dining area, a master bedroom with en-suite, a versatile garden room perfect for a home office or occasional fifth bedroom, and a sunny, low-maintenance rear garden — ideal for buyers seeking both comfort and flexibility.
Located on Lombard Street, the home is perfectly positioned for everyday convenience, with shops, schools, and public transport all within easy reach. The ground floor centres around a generous open-plan layout that provides two reception spaces within one connected living and dining zone. This leads directly into the spacious kitchen, creating an effortless flow for family life and entertaining.
Upstairs, the property offers four well-sized bedrooms, ensuring plenty of personal space for a growing household. The master bedroom benefits from its own en-suite, while the additional rooms are bright, comfortable, and versatile in their use. The garden room adds even more flexibility — ideal for work, hobbies, or extra bedroom.
Outside, the level rear garden provides a practical and inviting space for children, pets, or relaxed outdoor dining during warmer months.
Combining generous living areas, flexible room options, and a prime location, this home stands out as one of the best-value four-bedroom properties in Barry, offering a move-in-ready option for families and anyone seeking space without compromising on convenience.
PORCH (0.91m x 1.09m)
HALLWAY (0.91m)
LIVING ROOM (3.33m x 3.48m)
DINING ROOM (4.52m x 3.35m / 3.63m)
KITCHEN (3.33m / 3.78m x 2.67m)
REAR LOBBY (0.86m x 0.84m)
SHOWER ROOM (2.64m / 1.63m x 1.65m / 0.76m)
BEDROOM ONE (2.82m x 3.84m)
EN-SUITE BATHROOM (2.82m x 1.80m)
BEDROOM TWO (2.11m x 3.35m)
BEDROOM THREE (3.35m x 2.39m)
BEDROOM FOUR (2.51m x 2.95m)
GARDEN ROOM / OFFICE / WORKSHOP (2.62m x 2.82m)
HALLWAY (0.76m)