INVESTMENT BUYERS ONLY Currently let at £1,100 pcm. Modern purpose built two bedroom apartment conveniently located for easy access to Cardiff City, The Bay and M4 links. Accommodation briefly comprises, hallway, open plan lounge/dining/kitchen with sliding doors opening to a full length balcony and with views of the bay and communal grounds. The balcony is also accessed from both bedrooms. Master bedroom with en-suite shower room and fitted wardrobes. Second good size bedroom plus bathroom. The apartment is located on the third floor with lift, secure entry and allocated parking. Concierge service & on site leisure facilities include a pool and gym located in Lady Isle House, the adjacent block.
Communal entrance hall
Key-fob entry to communal hallway. Mailboxes. Stairs and lifts to all floors. The apartment is located on the third floor.
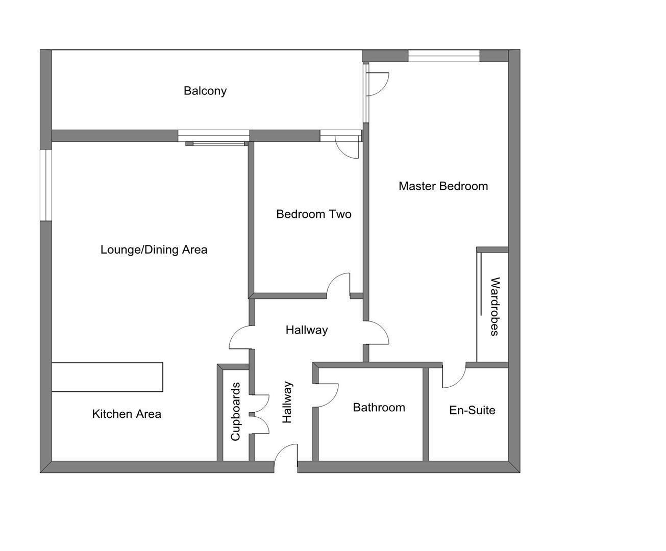
Hallway
Entered via a sold wood door with spy-hole. Video door entry phone. Wall mounted panel heater. Ceiling lights. Doors to all rooms. Double doors to deep storage cupboard housing hot water cylinder and timer controls. Fuse box.
Living room / Kitchen (7.24m x 4.29m)
Double glazed sliding doors open to a full length balcony with side bay views. Wall mounted panel heater. Double glazed window to side aspect also with bay views. Flush fitting ceiling lights.
Kitchen area with ceramic tiled flooring, wall and base units. Work tops incorporate a stainless steel one and a half bowl sink unit with mixer tap over. Integral washing machine, fridge and freezer. Matching island with built-in oven and space for microwave. Four ring ceramic hob with stainless steel extractor hood over. Cupboards and drawer units under.
Bedroom 1 (6.68m x 2.64m)
Double glazed window to front aspect overlooking the communal grounds. Double glazed side door accessing the balcony with side bay views. Wall mounted panel heater. Fitted wardrobes with sliding mirror fronted doors, shelving and hanging space. Door to:
En-suite (2.21m x 1.65m)
Fitted with a suite comprising, fully tiled shower enclosure with chrome fittings and folding glass door. Vanity unit incorporating a wash hand basin and w.c. with recessed cistern. Tiled splashbacks. Mirror and shaver point over basin. Ceramic tiled flooring. Ceiling spot lights and extractor. Chrome heated towel rail.
Bedroom 2
Double glazed door opening onto the balcony with views. Ceiling light. Wall mounted panel heater.
Bathroom (2.21m x 2.06m)
Fitted with a suite comprising, bath with side panel and chrome shower controls over. Glass shower screen to side. Tiling to bath/shower area. Vanity unit incorporating a wash hand basin and w.c. with recessed cistern. Tiled splashbacks. Mirror and shaver point over basin. Ceramic tiled flooring. Ceiling spot lights and extractor. Chrome heated towel rail.
Outside
Secure barrier entry to the development with concierge office and restricted parking. The apartment comes with an allocated parking bay. On site visitor permit parking. Communal grounds with central lawned area and pathways accessing the blocks.
On-site leisure suite located in Lady Island House with splash-pool and gym.
Additional information
We have been informed that the apartment is Leasehold. 125 years from 2003
Service charge £2880 to include Buildings Insurance and Water Rates.
Ground Rent - £150.00