Jeffrey Ross are proud to bring to the market The Moorwell, a selection of 12 unique and executive apartments located in one of Cardiff's most popular destinations. The apartments have been carefully consider to ensure that all have access to communal or their own outside space as well as secure underground Parking and lift access to the upper floors. This executive development is made up of 4 different apartment types, but all have their own unique attributes.
Apartments 7
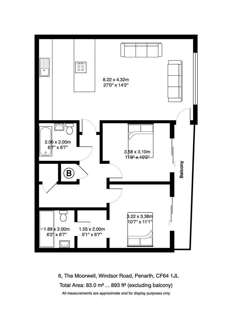
Large Two bedroom apartments that benefit open plan living and dining with access on to a large balcony. Two large double bedrooms, the master benefits its own dressing room and stylish ensuite with a separate bathroom for guest. The apartment design further benefits two storage cupboards with one housing the water tank. All apartments have access to the Courtyard / Yoga lawn. The property is offered to the market with no ongoing chain and would make a great place to live or investment given the rental potential they offer on both long and short terms lets.
Entrance Hallway
Storage Cupboard
Kitchen / Living / Dining (4.09 x 8.99)
Individually designed modern grey kitchens, White Quartz worktops, Stainless steel under-mount sinks, Full complimentary integrated, appliance packs included as standard Fridge /Freezer, Dishwasher and Induction hobs.
Bedroom 1 (3.40 x 3.12)
Dressing Room (2.21 x 1.60)
En Suite
Bedroom 2 (3.68 x 2.72)
Bathroom
Storage Cupboard.
Balcony (6.20 x 1.52)
Tenure
We are informed by our client that the property is Leasehold, with a 247 year lease. This is to be confirmed by your legal advisor.
Parking
Secure underground allocated Parking space.
Council Tax
Band - D £2,124.01 (2025-2026)
Ground Rent
£250 per annum
Service Charges
We are advised by our client that the service charge for Apartment 7 is £1,449.31 per annum with Ground Rent of £365 per annum. Total per annum - £1,814.31
Additional Information
GENERAL
Secure underground parking
10 year new home warranty
Composite decked balconies
LVT oak herringbone floors to living areas and hallways
Communal Halls have Art Deco inspired LVT flooring
Communal Lift
ELECTRICAL
Satellite points to living room and bedrooms for wall mounted TVs, LED spotlights to hall and living room, Black nickel switches and sockets. Colour video entry phone system, Smoke alarm fitted as standard and Sprinkler system throughout.
PENARTH
Conveniently located in the centre of the thriving seafront town of Penarth, The Moorwell takes inspiration from its Art Deco era façade. Penarth is known as "The Garden by the Sea" and has retained its historic charm but benefitted from an influx of delightful bars, restaurants and independent stores. Regular train services operate between Penarth, Dingle Road and Cardiff Central with an average journey time of 15 mins. For details on viewings arrangements or any questions you may have, please direct to Elliott, Sarah of Jeff.