About this property
Within walking distance of the main building and City Centre is this spacious, first-floor, one bedroom apartment that has been very tastefully and stylishly renovated to create a lovely flat. Richmond Crescent is very well located for the City Centre, City Road and surrounding areas. Internally, this property is brilliant with spacious and modern open/plan lounge / kitchen with gas hob and top-quality appliances, spacious double bedroom and a modern bathroom with bathtub and shower over. Perfect for a couple or single person who are to be living so centrally in Cathays yet having their own space. A great opportunity!
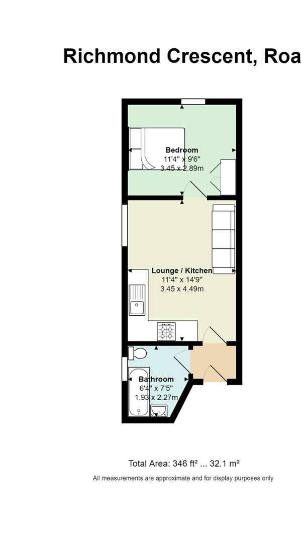
FLOOR PLAN AVAILABLE. GAS CENTRAL HEATING. STREET PARKING.
EPC RATING of C
A holding fee of £50 per person will be payable to secure the dwelling. This will be deducted from the final balance payable upon moving into the dwelling, subject to a successful application. Jeffrey Ross Limited reserves the right to retain this payment should the applicant have provided false or misleading information at the time of applying for the dwelling or failed to take reasonable steps to enter into the Standard Occupation Contract.
Within walking distance of the main building and City Centre is this spacious, first-floor, one bedroom apartment that has been very tastefully and stylishly renovated to create a lovely flat. Richmond Crescent is very well located for the City Centre, City Road and surrounding areas. Internally, this property is brilliant with spacious and modern open/plan lounge / kitchen with gas hob and top-quality appliances, spacious double bedroom and a modern bathroom with bathtub and shower over. Perfect for a couple or single person who are to be living so centrally in Cathays yet having their own space. A great opportunity!
FLOOR PLAN AVAILABLE. GAS CENTRAL HEATING. STREET PARKING.
EPC RATING of C
A holding fee of £50 per person will be payable to secure the dwelling. This will be deducted from the final balance payable upon moving into the dwelling, subject to a successful application. Jeffrey Ross Limited reserves the right to retain this payment should the applicant have provided false or misleading information at the time of applying for the dwelling or failed to take reasonable steps to enter into the Standard Occupation Contract.