This detached bungalow offers a perfect blend of comfort and flexibility for modern living. With three spacious reception rooms, this property provides ample space for both relaxation and entertaining, making it an ideal home for families or those who enjoy hosting guests.
The bungalow features three well-proportioned bedrooms, ensuring that there is plenty of room for everyone. The extended layout of the property enhances its livability, allowing for a variety of uses and configurations to suit your lifestyle.
Outside, the property boasts a generous driveway and a garage, providing secure parking and additional storage options. The absence of an onward chain simplifies the buying process, allowing for a smoother transition into your new home.
This bungalow is not just a house; it is a canvas for your future. With its flexible living spaces and convenient location, it presents an excellent opportunity for those seeking a comfortable and adaptable home in a desirable area. Whether you are looking to downsize or find your first home, this property is sure to impress. Do not miss the chance to make this charming bungalow your own.
Detached bungalow combines comfort, space, and versatility—perfect for modern living. Boasting three generous reception rooms, Its thoughtfully extended layout enhances the sense of space throughout, offering a range of possibilities to suit your lifestyle—whether you need a home office, playroom, or additional living area.
PORCH (0.99m x 0.86m)
HALLWAY (2.87m x 2.59m)
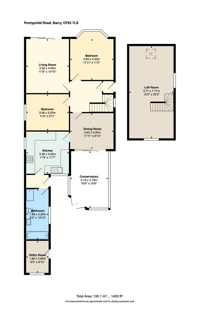
LIVING ROOM (3.58m x 4.52m)
BEDROOM ONE (3.61m x 3.53m)
BEDROOM TWO (3.02m x 3.56m)
DINING ROOM (3.63m x 3.00m)
KITCHEN (3.51m x 3.56m)
REAR LOBBY (1.07m x 1.88m)
BATHROOM (4.22m x 1.83m)
CONSERVATORY (2.79m x 4.78m)
LOFT ROOM (7.70m x 3.71m)
UTILITY ROOM (1.85m x 2.69m)
“This property has been a much-loved family home, and while we’ll be sad to say goodbye, the time feels right for new owners to create their own memories here.”