Jeffrey Ross are pleased to bring to the market this beautifully presented FIVE bedroom family home with a double garage in a sought after location. The property briefly comprises of entrance hall, lounge, open plan kitchen / dining room, Family / Play Room, utility room and W.C to the ground floor, to the first floor there are two double bedrooms and a single bedroom as well as a family bathroom and stairs leading to the second floor. The top floor of the property has been dormered to accommodate a further two double bedrooms and modern shower room.
Outside there is an enclosed rear and side garden with side access, double garage and a drive for approx four cars.
Within catchment of Rhydypenau Primary and Cardiff High School.
Situated within a short walk to Roath park boating lake, local shops, parks and amenities as well as Cardiff city Centre.
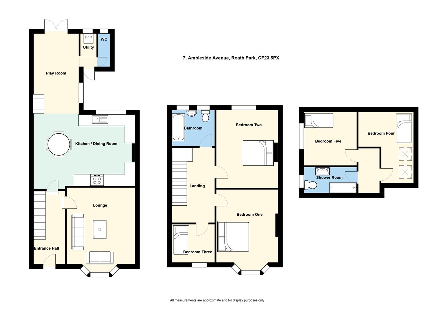
Entrance Hall
Lounge (4.15 x 4.58m)
Kitchen / Dining Room (6.13m x 4.32m)
Play Room (2.73m x 4.84m)
Utility room (0.99m x 2.02m)
Ground Floor W.C (0.70m x 1.98m)
Landing
Bedroom One (3.73m x 4.57m)
Bedroom Two (3.38 m x 4.43m)
Bedroom Three (2.34m x 2.33m)
Bathroom (2.53m x 2.21m)
Bedroom Four (3.35m x 4.45m)
Bedroom Five (3.21m x 3.28m)
Shower Room (1.59m x 3.25m)
Garden
Double Garage
Tenure
Freehold - This is to be confirmed with your legal representative.
Council Tax
Band F
School Catchment
Rhydypenau Primary School (year 2024-25)
Cardiff High School (year 2024-25)
Ysgol Y Berllan Deg (year 2024-25)
Ysgol Gyfun Gymraeg Bro Edern (year 2024-25)
* Subject to availability *
Additional Information
Information on the house
- Extension completed in Summer 2019 (which added 2 bedrooms, 1 bathrooms, new boiler and new roof for the main part of the house)
- New garden with outdoor lights completed August 2022
- New drive that fits 4 cars on completed November 2023
Immaculate Five Bedroom Family Home With Double Garage.